Fideicomiso Cumbres Anasagasti - Piso 01 Departamento 04

Información básica - ID: 4005

Tipo de operación

Venta

Localidad

Bariloche

Valor

USD 192.890

Antigüedad

2 años

Estado

En Construcción

Sup. total m²

73.98

Sup. cubierta m²

62.22

Sup. descubierta m²

11.76

Ambientes

2

Dormitorios

1

Baños

1

DESCRIPCIÓN

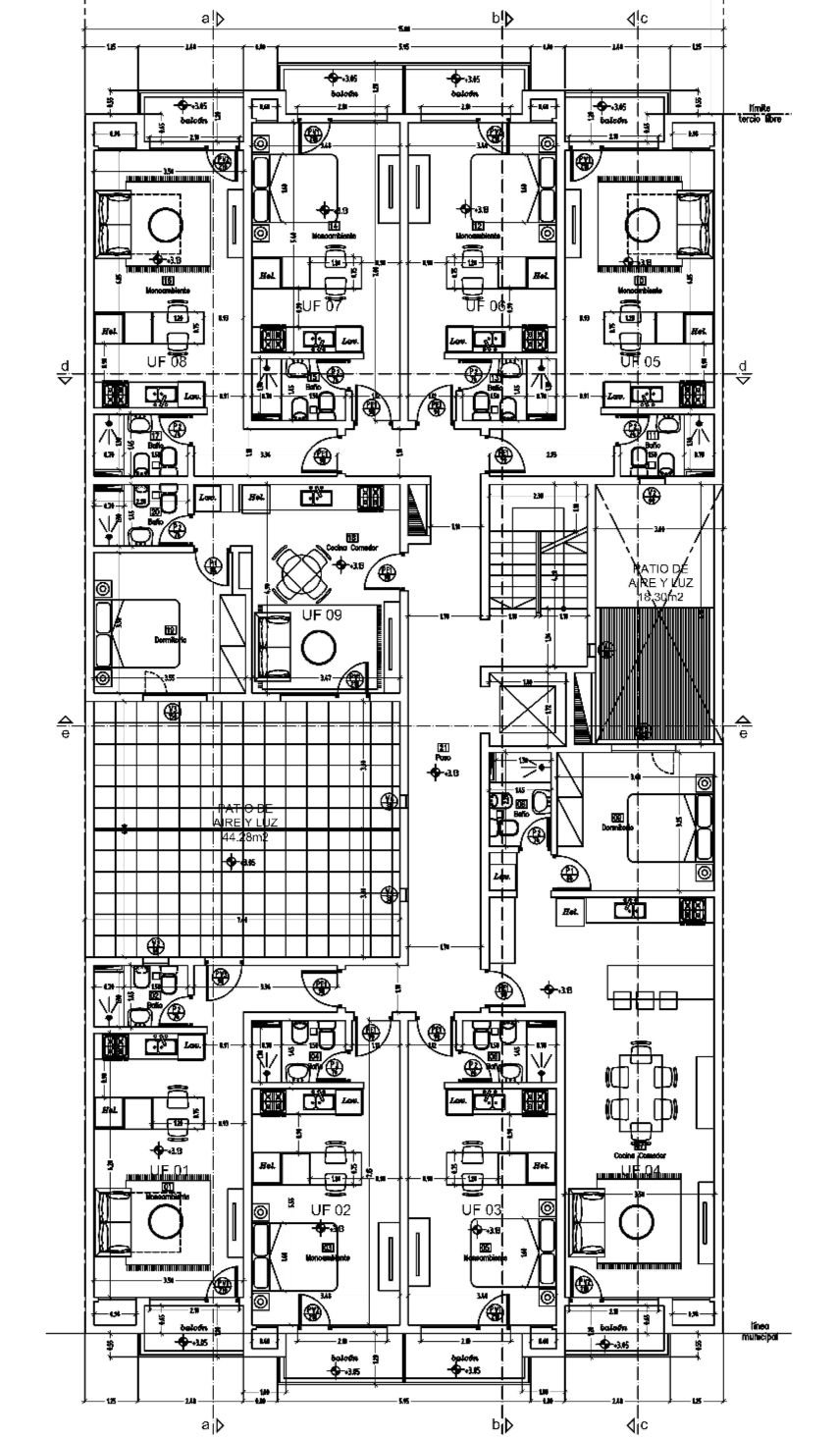
El Fideicomiso ubicado en Anasagasti 1409 se compone de 34 unidades funcionales y 17 cocheras, en una zona residencial con servicios cercanos como despensas, verdulerías, supermercados, farmacias, estación de servicio, universidad, etc. Es un entorno tranquilo y cómodo, ideal tanto para vivir como para invertir, con buena accesibilidad y cercanía a los principales puntos de la ciudad. Se trata de un desarrollo moderno, construido en mampostería tradicional con materiales de primera calidad. Las aberturas son de PVC con doble vidrio hermético (DVH), los pisos son de porcelanato, calefacción por radiadores con caldera individual, incluyen pintura de primera calidad y luminarias LED en todos los espacios. El diseño combina funcionalidad, confort y estética contemporánea, ofreciendo unidades luminosas, bien distribuidas y con detalles cuidados que realzan la calidad del proyecto. El edificio está compuesto por departamentos de uno y dos ambientes, pensados para quienes buscan viviendas prácticas, modernas y con bajo mantenimiento, o para inversores que apuntan a unidades de alta demanda para alquiler. Es una zona segura, de calles tranquilas, con buen acceso a medios de transporte y avenidas principales, lo que facilita la conexión con el centro y otras áreas de la ciudad. Sobre esta unidad disponible: Es de dos ambientes, con baño completo, un dormitorio, patio interno de 8.89m2 y balcón hacia el frente de 2.87m2. OPCIONAL: cocheras desde u$s15.000.- Consulte disponibilidad. OPCIONAL: cocheras desde u$s15.000.- Consulte disponibilidad. POSESIÓN: DICIEMBRE 2027 ANTICIPO DEL 30% Y SALDO EN CUOTAS HASTA 30 CUOTAS MÁXIMO.

MAS DETALLES DE LA PROPIEDAD

Orientación: Frente Norte

Pisos: 01

Calefón: Caldera

Caldera: Si

Calefacción: Si

Cocina: Si

Dirección: Anasagasti 1409

Categoría: Venta en Pozo

Tipo de calefacción: Central con Radiadores

Desague cloacal: Si

Gas natural: Si

Internet: Si

Luz: Si

Pavimento: Si

Video cable: Si

WhatsApp